Bir şehirde nerede konut yapılacağı, hangi alanların yeşil alan veya ticaret bölgesi olacağı, yolların nasıl düzenleneceği tamamen imar planları ile belirlenir.
Yani bir parselin kaderi, aslında bu planlarda çizilen birkaç çizgiyle şekillenir.
İmar planı sadece teknik bir belge değildir;
bir kentin kimliğini, yaşam kalitesini ve geleceğini doğrudan etkileyen stratejik bir yol haritasıdır.
Bu nedenle ister arsa sahibi olun, ister yatırım yapmayı düşünün, imar planını doğru okumak ve anlamak çok önemlidir.
Elçi Planlama olarak bu rehberde, imar planı nedir, nasıl hazırlanır, kim onaylar, hangi türleri vardır ve sizi nasıl etkiler sorularının tüm yanıtlarını sade bir dille anlatıyoruz.


İmar Planı Neden Önemlidir?
Bir şehirde nerede konut yapılacağı, hangi alanların yeşil alan veya ticaret bölgesi olacağı, yolların nasıl düzenleneceği tamamen imar planları ile belirlenir.
Yani bir parselin kaderi, aslında bu planlarda çizilen birkaç çizgiyle şekillenir.
İmar planı sadece teknik bir belge değildir; bir kentin kimliğini, yaşam kalitesini ve geleceğini doğrudan etkileyen stratejik bir yol haritasıdır.
Bu nedenle ister arsa sahibi olun, ister yatırım yapmayı düşünün, imar planını doğru okumak ve anlamak çok önemlidir.
Elçi Planlama olarak bu rehberde, imar planı nedir, nasıl hazırlanır, kim onaylar, hangi türleri vardır ve sizi nasıl etkiler sorularının tüm yanıtlarını sade bir dille anlatıyoruz.
İmar Planı Nedir?
İmar planı, bir yerleşim alanının planlı, sağlıklı ve yaşanabilir şekilde gelişmesi amacıyla hazırlanmış, harita üzerinde çizilmiş resmi bir belgedir.
3194 sayılı İmar Kanunu’na göre, bu planlar:
Arazi kullanım kararlarını,
Yapılaşma koşullarını,
Ulaşım sistemlerini,
Yeşil alan, park, eğitim, sağlık gibi kamu hizmet alanlarını belirler.
Yani imar planı, sadece “bina yapılacak yer”i değil, bir yaşam alanının bütününü tarif eder.
Türkiye’de İmar Planı Hiyerarşisi
İmar planları, ülke genelinden parsele kadar inen bir hiyerarşi içinde hazırlanır.
Bu sistem, yukarıdan aşağıya doğru şöyle işler:
1) Ülke ve Bölge Planları
Bu düzeydeki planlar, makro ölçekte kalkınma hedeflerini belirler.
Türkiye’de Kalkınma Planları (Cumhurbaşkanlığı Strateji ve Bütçe Başkanlığı tarafından hazırlanır) ve Bölge Planları (Kalkınma Ajansları tarafından hazırlanır) temel yönlendirici belgelerdir.
Bu planlar, sanayi, tarım, turizm, enerji gibi sektörlerin hangi bölgelerde yoğunlaşacağını belirler.
2) 1/100.000 Ölçekli Çevre Düzeni Planı
Çevre, Şehircilik ve İklim Değişikliği Bakanlığı tarafından hazırlanır. Bu plan, şehirlerin çevresel ve ekonomik gelişme yönünü gösterir. Yani “hangi alanlar korunmalı, hangileri gelişmeye açılmalı?” sorusuna cevap verir.
3) 1/5000 Ölçekli Nazım İmar Planı
Belediyeler veya İl Özel İdareleri tarafından hazırlanır.
Bir kentin genel iskeletini çizer:
Konut, ticaret, sanayi, yeşil alan gibi ana kullanımlar belirlenir.
Ulaşım ağı ve altyapı kararları yer alır.
Ancak dikkat ⚠️
Bu plan yönlendiricidir, parsel bazında inşaat hakkı vermez.
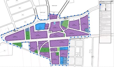
4) 1/1000 Ölçekli Uygulama İmar Planı
İşte vatandaşın doğrudan ilgilendiği plan budur.
Bu planda artık her parselin yapılaşma koşulları netleşir:
Emsal (inşaat hakkı),
TAKS, KAKS,
Kat adedi,
Çekme mesafeleri,
Parsel sınırları.
Bu plan yürürlüğe girmeden imar durumu belgesi, inşaat ruhsatı veya ifraz işlemi yapılamaz.
👉 Daha fazla bilgi için: 1/5000 ve 1/1000 İmar Planı Farkı Nedir?
“İmar Var Ama Çıkmıyor” Ne Demek?
Bu cümle neredeyse her şehirde duyulur.
Genelde şu durumu anlatır:
- Bölge 1/5000 nazım planda görünüyor ama 1/1000 uygulama planı henüz yapılmamış.
Bu durumda belediye, yapı ruhsatı veya imar durumu veremez. Plan zinciri tamamlanmadıkça arsanız teknik olarak “planlı” ama uygulanamaz konumda olur.
İmar Planı Türleri Nelerdir?
Türkiye’de imar planları üç ana ölçekte hazırlanır ve her biri farklı bir görevi yerine getirir:
1) Çevre Düzeni Planı (1/100.000 Ölçekli Plan)
Bu plan, bölgesel ölçekte hazırlanır ve genellikle Bakanlık tarafından yapılır.
Sanayi, tarım, turizm gibi ana kullanım kararlarını belirler.
Bir bölgenin gelişme yönünü, korunacak alanları ve çevresel öncelikleri gösterir.
2) Nazım İmar Planı (1/5000 Ölçekli Plan)
Belediyeler veya il özel idareleri tarafından hazırlanır.
Kentin genel iskeletini oluşturur; yani konut, ticaret, sanayi, yeşil alan gibi temel kullanım kararlarını içerir.
Ayrıca ulaşım ağı, ana yollar ve altyapı sistemleri bu plan düzeyinde belirlenir.
Nazım plan yönlendiricidir; parsel bazında yapılaşma hakkı vermez.
3) Uygulama İmar Planı (1/1000 Ölçekli Plan)
Vatandaşın doğrudan ilgilendiği plan türüdür.
Nazım planda belirlenen kararlar, uygulama ölçeğinde detaylandırılır.
Her parselin yapılaşma koşulları, emsal (inşaat hakkı), TAKS, KAKS, kat adedi, çekme mesafeleri gibi bilgiler bu planda net şekilde belirtilir.
Bu plan olmadan imar durumu belgesi, ruhsat ya da ifraz işlemi yapılamaz.
Parseliniz Yola veya Parka mı Giriyor?
Eğer parselinizin bir kısmı yola veya parka denk geliyorsa, bu alan Düzenleme Ortaklık Payı (DOP) kapsamında değerlendirilebilir. İmar uygulaması sırasında, arsaların %35’e kadar olan kısmı yol-park gibi kamusal alanlara ayrılabilir.
Ancak:
Eğer imar uygulaması yapılmamışsa,
Parsel hâlâ kadastro parseli ise, belediye bu alanı kamulaştırmadan alamaz.
Kamulaştırma yapılmazsa, “kamulaştırmasız el atma” davası açma hakkınız vardır.
👉 Ayrıntılı bilgi: İmar Planında Yol veya Parka Giren Parsel İçin Ne Yapılabilir?
İmar Planı Değişikliği Nasıl Yapılır?
Bazen mevcut planlar mülkiyetle uyumlu olmayabilir veya mağduriyet doğurabilir.
Bu durumlarda plan değişikliği teklifi hazırlanabilir.
Plan değişikliği gerekçeleri:
Planın uygulanabilir olmaması,
Yeni yol veya tesis ihtiyaçları,
Kamu yararına kullanım değişiklikleri,
Mülkiyet sınırlarının güncellenmesi.
Bu teklif, şehir plancısı tarafından hazırlanır ve belediye meclisine sunulur. Uygun görülürse onaylanır, askıya çıkarılır ve kesinleşir.
👉 Daha fazlası için: İmar Planı Değişikliği Süreci Nasıl İşler?
Kamulaştırma ve İmar Mağduriyetleri
Eğer parseliniz tamamen kamu alanına ayrılmışsa (örneğin park, yol, yeşil alan),
belediye bu alanı kamulaştırmak zorundadır.
Ancak uzun süre kamulaştırma yapılmazsa, “kamulaştırmasız el atma” davası açabilirsiniz.
Bu davalarda mahkeme genellikle belediyeden bedel ödenmesine karar verir.
👉 Detaylı rehber: Kamulaştırma Nedir?
Vatandaşlar İçin Pratik Bilgiler
İmar durumu belgesi almadan arsa almayın.
Belediyede “1/1000 uygulama planı” olup olmadığını mutlaka sorgulayın.
Plan değişikliklerini düzenli olarak takip edin (belediye ilan panosu ve web sitesi).
Eğer bölgeniz plansızsa, mevzi imar planı ile çözüm üretmek mümkündür.
Elçi Planlama ile Doğru Planlama
Van merkezli bir şehir planlama ofisi olarak, hem bireysel hem kurumsal düzeyde imar planı, plan değişikliği, mevzi plan ve parsel analiz hizmetleri sunuyoruz.
Amacımız yalnızca teknik çizim yapmak değil;
vatandaşın mülkiyet hakkını koruyarak, şehirlerin doğru planlanmasına katkı sağlamaktır.
📞 İmar planı durumunuzu öğrenmek veya profesyonel destek almak için bizimle iletişime geçin.
👉 İletişim
Sık Sorulan Sorular
1. İmar planı kim hazırlar?
Şehir plancıları tarafından hazırlanır, belediye veya bakanlıkça onaylanır.
2. 1/5000 ve 1/1000 plan farkı nedir?
1/5000 genel planlama kararıdır, 1/1000 ise parsel bazında yapılaşma hakkını gösterir.
3. Arsam yola giriyor, ne yapmalıyım?
İmar uygulaması yapılmadıysa kamulaştırma gerekir. Uzun süredir bekliyorsa dava açılabilir.
4. İmar planı değiştirilebilir mi?
Evet, plan değişikliği teklifi hazırlanabilir. Uygun görülürse meclis onayıyla yürürlüğe girer.
5. Plan iptal edilirse ne olur?
O bölgede yeni plan yapılana kadar imar durumu verilemez, inşaat ruhsatı alınamaz.
















































Şehir planlama ve mimari danışmanlık hizmetleri ile sizinle buluşmaya hazırız.
İletİŞİM
© 2025. Elçi Planlama & Mimarlık




